Casa semindipendente in vendita

Luzzara, Piazza A. Tedeschi
€ 110.000
4 locali 4 locali
100 Mq 100 Mq
1 bagno 1 bagno

Casa semindipendente in vendita

Luzzara, Piazza A. Tedeschi

Descrizione annuncio

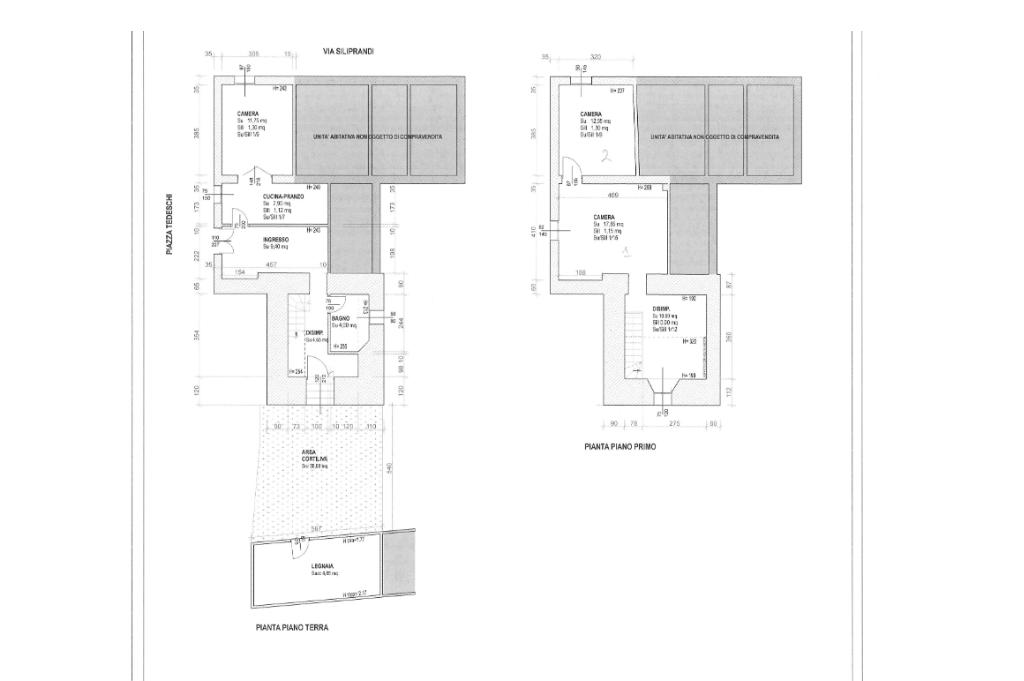
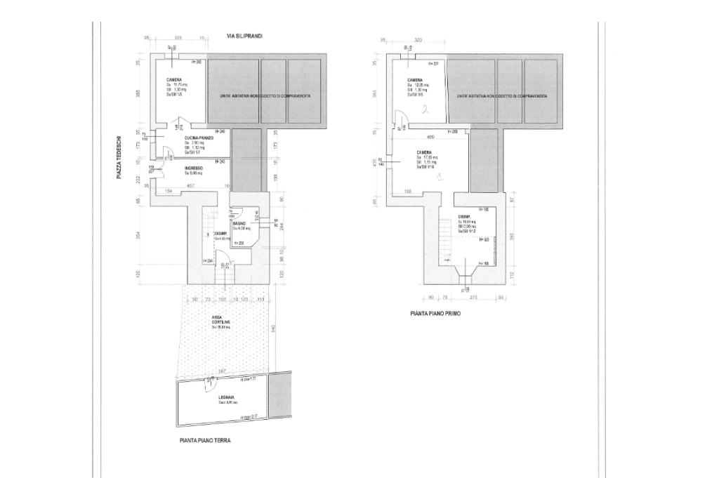
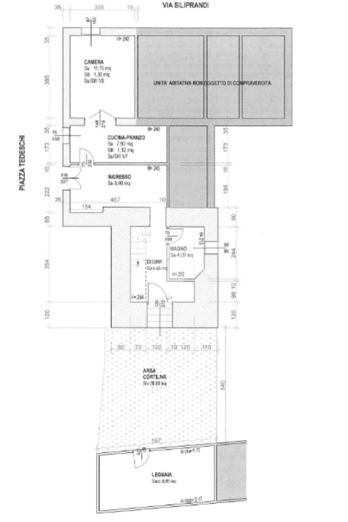
A Luzzara, proponiamo in vendita una casa semindipendente che unisce il fascino storico alla comodità moderna. Questa porzione di casa, costruita nel 1930 e ristrutturata esternamente nel 2012 con rifacinento del tetto, grondaie e tiranti, offre un ingresso indipendente che garantisce privacy e autonomia. Distribuita su due livelli, la proprietà si estende su una superficie di 100 mq e comprende quattro locali ben distribuiti. Al piano superiore, due camere da letto accoglienti offrono uno spazio ideale per il riposo, mentre al piano terra si trova la zona giorno con la sala e la cucina separate. Il bagno completa gli interni. All'esterno, un cortile privato rappresenta un'oasi di tranquillità, perfetta per momenti di relax all'aperto. Situata nel centro di Luzzara, questa casa è libera subito, pronta ad accogliere chi cerca una soluzione abitativa comoda e ben collegata ai servizi del paese.

Per ulteriori informazioni e per visitare l'immobile chiama il 347-6836720 oppure scrivi a

Se oltre all’acquisto della tua nuova casa hai bisogno di vendere quella attuale, contattaci. Le nostre valutazioni sono sempre gratuite e senza impegno.

Ricorda inoltre che i nostri consulenti del credito sono sempre a tua disposizione per offrirti una consulenza personalizzata per mutui e finanziamenti su misura per le tue esigenze.

Mostra tutto

Nelle vicinanze

Trasporto pubblico Trasporto pubblico
Luzzara
Luzzara
690 m
Ricariche auto elettriche Ricariche auto elettriche
Enel X Municipio di Luzzara
210 m
Mostra tutto

Caratteristiche

Rif.:
61185548
Piano:
1 di 2 (Piano su più livelli)
Camere da letto:
2
Arredamento:
Assente
Condizionamento:
Assente
Ascensore:
No
Mostra tutto
Prezzo Prezzo
€ 110.000
Rata mutuo Rata mutuo
€ 520 / mese
Spese annue Spese annue
€ 0
Proponi il tuo prezzoProponi il tuo prezzo

Classe Energetica

G
G
G
G
G
G
G
G
G
EP globale non rinnovabile:
351.97 kW h/m² anno
EP globale rinnovabile:
0.84 kW h/m² anno
EP invernale del fabbricato:
EP estiva del fabbricato:
Anno di costruzione:
1930
Riscaldamento:
Autonomo
Tipo impianto:
A radiatori
Tipo alimentazione:
Metano

Ti interessa visionare l'immobile?

Fissa un appuntamento  Fissa un appuntamento

Richiedi informazioni

Clicca su Leggi per aprire l'informativa
* Questi campi sono obbligatori

Calcola il tuo mutuo

Semplice e senza impegno
Anticipo

( % )
Mutuo

( % )

pochi semplici passi

inserisci i tuoi dati
Questionario completato
Grazie per aver richiesto un appuntamento senza impegno con un nostro Consulente del Credito e Assicurativo.

Hai inserito correttamente tutti i dati necessari e a breve riceverai una e-mail con un link da convalidare per inviare i tuoi dati.
Affiliato
Studio Alfa Srl
Via Giovanni Passerini, 1/A 42016 Guastalla (RE)

Il nostro staff


  • Alex Aldini
    Responsabile

  • Achraf Sadkani
    Collaboratore

  • Gianfranco Iosso
    Coordinatore

  • Riccardo Zoboli
    Collaboratore

  • Antonio Iosso
    Affiliato
Via Giovanni Passerini, 1/A 42016 Guastalla (RE)
Zona: Guastalla - Gualtieri - Luzzara
Mostra su mappa
Affiliato
Studio Alfa Srl
Via Giovanni Passerini, 1/A 42016 Guastalla (RE)

2026 Tecnocasa Franchising S.p.A. - P. IVA 08365160152 - Via Monte Bianco 60/A 20089 Rozzano (MI). Ogni agenzia ha un proprio titolare ed è autonoma. Privacy policy | Policy utilizzo | Cookie policy